Haus zum Kauf in Westoverledingen
+++ Ebenerdig bewohnbar, DG ausgebaut mit Einliegerwohnung, Waldrandlage, großes Grundstück, Innenhof mit Nebengebäuden ! +++
Beschreibung
Das Video zu dieser Immobilie finden Sie unter folgendem Link:
https://www.youtube.com/watch?v=pJ7tMFqwgr4
(im Vollbildformat finden Sie dieses Video auf unseren Facebook- und Instagramseiten: Roy Immobilien)
Dieses Einfamilienhaus wurde 1966 erbaut und nachträglich im Dachgeschoss umfangreich ausgebaut. Mit dem Umbau des Badeszimmers im EG 2015 ist die Wohneinheit im EG barrierefrei bewohnbar.
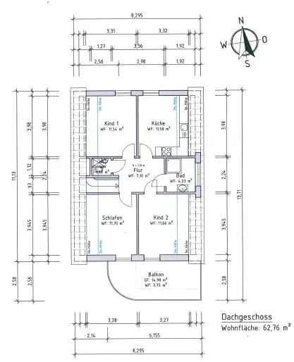
Im Dachgeschoss befindet sich heute eine Einliegerwohnung, die mit separatem Eingang ideal für die Vermietung geeignet ist.
Die Immobilie ist renovierungsbedürftig, aber mit etwas handwerklichem Geschick können Sie sich hier ein gemütliches Zuhause in angehmer, ländlicher Wohnlage schaffen.
Das Grundstück ist direkt am Waldrandgelegen und bietet einen herrlichen, unverbauten Blick ins Grün.
Die beiden Wohneinheiten sind sowohl separat, als auch zusammen nutzbar und bieten somit die Möglichkeit der Vermietung zur Unterstützung der Finanzierung oder als Mehrgenerationenhaus.
Die Wohneiheit im EG verfügt über folgende Raumaufteilung:
- geräumiges Wohn-Esszimmer
- Küche mit Einbauküche
- Ein Schlafzimmer
- Ein Badezimmer
und ein Gäste-WC
Das sehr geräumige Wohn-Esszimmer wird von großen Fensterfronten lichtdurchflutet.
Gleich neben dem Wohn-Esszimmer befindet sich die geräumige Essküche. Sie ist mit Einbauküche ausgestattet und bietet reichlich Platz für den Familientisch direkt am Fenster.
Mit wenigen Schritten gelangen Sie von hier auf den wind- und sichgeschützten Innenhof in Süd-Lage, wo Sie gemütliche Grillabende mit der Familie oder Feunden genießen können.
Ein Schlafzimmer und das Badezimmer im EG ermöglichen ebenerdiges Wohnen.
Das Badezimmer wurde barrierefrei umgebaut und verfügt über eine bodentiefe Dusche, Waschtisch und ist bis zur Decke gefliest.
Das WC, auch als Gäste-WC nutzbar, befindet sich gleich nebenan.
Über eine Massivholztreppe gelangen Sie von dem praktischen Windfang in das ausgebaute Dachgeschoss.
Der große Flur führt Sie in folgende Räume:
- Wohnzimmer
- Küche
- 2 Schlafzimmer
- Badezimmer
und separates WC mit Waschtisch
Von dem Wohnzimmer und eines der Schlafzimmer aus, haben Sie Austritt auf den geräumigen, überdachten Balkon. Von hier genießen Sie einen herrlichen, unverbauten Blick ins Grün.
Die Küche bietet Platz für eine Winkel-Einbauküche und eine Tischgruppe für ca. 4 Personen.
Das Badezimmer ist mit Dusche und Waschtisch ausgestattet und bis zur Decke hell gefliest. Auch hier befindet sich das WC separat gleich nebenen.
Ausstattung
-Die Einliegerwohnung verfügt über einen separaten Eingang und ist seit Mitte September leer stehend
-Die Abwasserleitung vom Badezimmer im OG wurde 2023 erneuert
-Das Badezimmer im EG wurde 2015 erneuert und barrierefrei ausgestattet
-Die Fenster wurden 2013 mit Kunststofffenstern erneuert
-Die Zwischendecke EG/DG ist aus Beton für eine zusätzliche Trittschalldämmung
-Der Garten ist mit altem Baumbestand und Hecken sichtgeschützt
-Der Innenhof mit Sonnenterrasse befindet sich in Süd-Lage
-Im Garten befindet sich eine große Partyhütte (Dach ist undicht)
-Das Haus ist teilunterkellert
Der Energieausweis ist in Bearbeitung.
Die Immobilie ist dem Baujahr entsprechend renovierungsbedürftig
Lage
Die Immobilie befindet sich in Westoverledingen OT Ihren.
Westoverledingen liegt genau zwischen Papenburg und Leer an der B 70. Zur A31 Richtung Norden oder Süden und zur A28 sind es jeweils ca. 20 Autominuten. Der Ort verfügt über eine gute Infrastruktur mit mehreren Lebensmittelhändlern und -Discountern, Bäcker, Ärzten, weiteren Geschäften, Kindergarten und Schule.
Sonstiges
Nicht alle Objekte in unserem Bestand sind veröffentlicht! Rufen Sie uns kostenfrei unter
0800 / 77 88 77 99 an, dann suchen wir gerne aktiv nach Ihrer Wunschimmobilie.
Alle Informationen beruhen auf den Angaben der Eigentümer, daher keine Haftung für Vollständigkeit und Richtigkeit.
Kontakt aufnehmen
+++ Ebenerdig bewohnbar, DG ausgebaut mit Einliegerwohnung, Waldrandlage, großes Grundstück, Innenhof mit Nebengebäuden ! +++
Haus zum Kauf
| Kaufpreis 179.000 € |
| Adresse 26810 Westoverledingen |
| Wohnfläche ca. 141 m² |
| Zimmer 6 |
| Geschossflächenzahl (GFZ) 2 |
| Grundstücksfläche ca. 1.018 m² |
| Objekt-Nr. 254 |
Ausstattung
| Anzahl Badezimmer 2 |
| Anzahl Balkone 1 |
| Anzahl Etagen 2 |
| Anzahl Schlafzimmer 4 |
| Anzahl Stellplätze 4 |
| Anzahl Terrassen 2 |
| Anzahl Zimmer 6 |
| Ausrichtung Balkon/Terrasse Süden |
| Bad mit Dusche, Fenster |
| Baujahr 1966 |
| Bauweise Massiv |
| Befeuerungsart Gas |
| Boden Fliesen, Laminat |
| Provisionshinweis 3,57 % inkl. MwSt. jeweils vom Käufer und Verkäufer. Verdient und fällig mit Kaufvertragsunterzeichnung. |
| Einliegerwohnung vorhanden |
| Fahrradraum |
| Gäste-WC |
| Heizungsart Zentralheizung |
| Küche Einbauküche |
| Provisionspflichtig |
| Seniorengerecht |
| Garagenanzahl 1 |
| Stellplätze 3 |
| Unterkellert teilweise |
| verfügbar ab nach Vereinbarung |
| Zustand teil/vollrenovierungsbedürftig |